Residence

Four

Res.

Four

1217 Dorothy Lane

2 Car Garage

2,744 Conditioned Sq Ft

568 Garage Sq Ft

426 Exterior Sq Ft

375 Basement Sq Ft

Bedrooms

3

Bathrooms

2

Powder Rooms

2

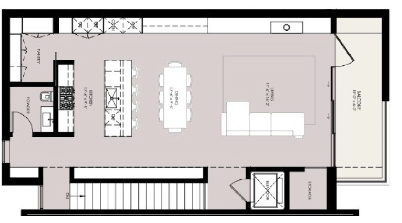
Residence Four features an expansive third-floor great room, ideal for entertaining and everyday living. The second floor offers two spacious bedrooms and a central bath suite. Smart planning and clean lines define this home’s balanced, livable design.

A Closer Look

*This video highlights Residence Six, offering a preview of the finishes and lifestyle across available homes.