Skip to content
Home
Residences
One
Two – Sold
Three
Four
Five
Six – Sold
Seven – Sold
Amenities
Inquire
Inquire
Residence
Six
Res.
Six
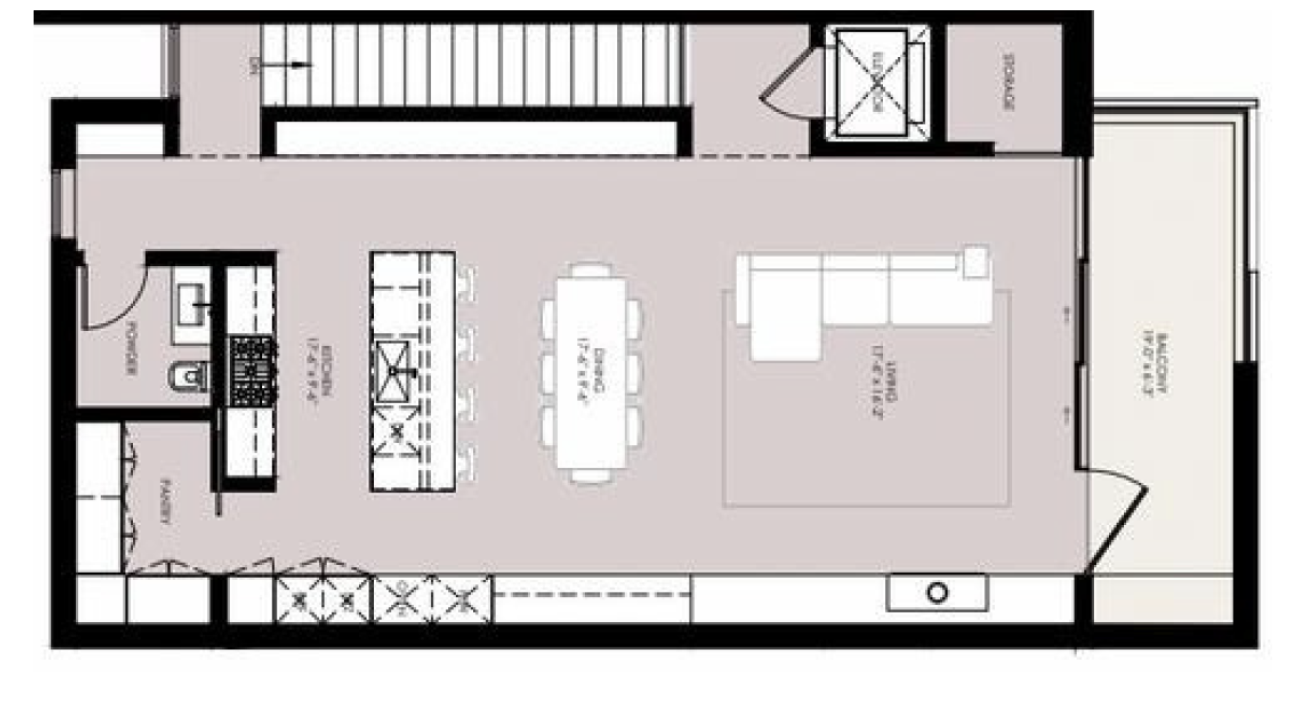
1225 Dorothy Lane
2 Car Garage
2,795 Conditioned Sq Ft
570 Garage Sq Ft
457 Exterior Sq Ft
Bedrooms
3
Bathrooms
2
Powder Rooms
2
Residence Six offers over 2,700 square feet across three levels, with two spacious bedrooms, two full baths, a powder room on each floor, and an open-plan kitchen and living area on the top level, perfectly arranged for privacy and ease.
First Floor
Second Floor
Third Floor
A Closer Look
< Prev
Inquire Now